Precision Drafted Delivered
Serving Denver Metro & National Clients – AutoDesk Inventor, SolidWorks, Revit & More



Seven Ways WeBuild Your Vision
Mechanical 3D Modeling
Accurate 3D models and 2D manufacturing drawings from your existing files, photos, or specs. Delivered in AutoDesk Inventor, SolidWorks, and more.
- 3D Models
- Manufacturing Drawings
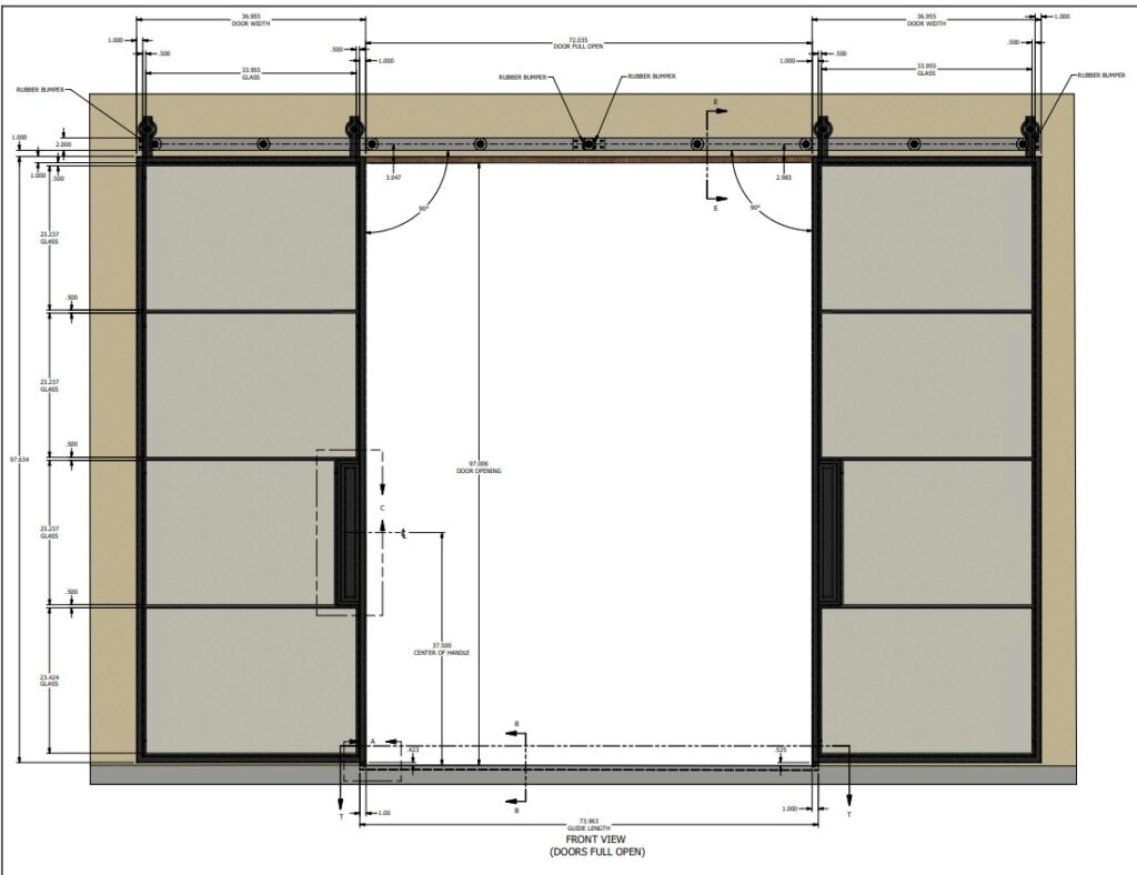
Architectural Steel Drafting
Full fabrication drawing packages for stairs, railings, doors, and structural steel. We also source quotes from 5 fabricators and oversee installation.
- Submittal-Ready
- Project Management
Sheet Metal Design
Convert blueprints or sketches into precise flat patterns with accurate bend deductions. Ready for CNC plasma, laser, or punch cutting.
- DXF
- SVG
- DWG Ready
BIM Modeling & Drafting
Architectural 3D models, permit drawings, and construction documents in AutoCAD, Revit, ArchiCAD, or Vectorworks.
- Permit-Ready
- Multi-Platform
Engineering Documentation
Exploded views, welding sequences, assembly instructions, and packaging drawings for manufacturing and production.
- Assembly
- Weld
- Packaging
CNC Cut Files
DXF, SVG, and DWG files for plasma, waterjet, or laser cutting — converted from any image format you provide.
- Plasma
- Waterjet
- Laser
Paper Templates & Patterns
Precision-scaled paper templates printed on our in-house plotter and shipped directly to you. Cut right over the pattern — no measuring required.
- Plotted
- Shipped To You




